Skipnavigation DKB Grund

Springe direkt zu:

Neubau Doppelhaushälften im grünen Beelitz!

14547 Beelitz | 150/9849_9
Ansicht
Ansicht
IMG_6751 (003)
IMG_6751 (003)
Typ_4_Garten
Typ_4_Garten
Doppelhaushälften
Doppelhaushälften
Vogelperspektive
Vogelperspektive
Morgendämmerung
Morgendämmerung
Typ_4_Straße
Typ_4_Straße
Bad
Bad
Wohnzimmer
Wohnzimmer
Wohnzimmer
Wohnzimmer
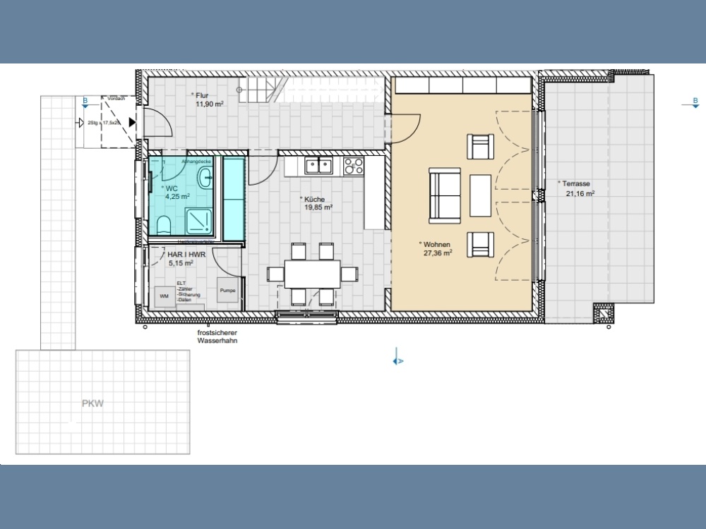
Erdgeschoss
Erdgeschoss
Obergeschoss
Obergeschoss
Lageplan
Lageplan
Finanzierungsrechner
Finanzierungsrechner
709.500 €Kaufpreis
Haus Typ
5 Zimmer
ca. 163 m2 Wohnfläche
361 m2 Grundstücksfläche
2024 Fertigstellung voraussichtl.
  • Familienfreundliches Wohnquartier
  • Optimale Verkehrsanbindung
  • Ausgezeichnete Infrastruktur
Weitere Daten
Haustyp: Haus
Energieausweis
Energieeffizienzklasse: A+
Energieausweistyp: Bedarfsausweis
Energieträger: Luft/Wasser Wärmepumpe
A+
0
25
Energie­effizienz­klasse A+
A
B
50
75
C
100
D
125
E
150
F
175
200
G
225
H
> 250
Kosten
Kaufpreis: 709.500 €
Preis pro m2: 4.350,09 €
Provisionsfrei für Käufer*innen
Objektbeschreibung

Raus aus der Enge der Stadt – rein in die Natur für mehr Lebensqualität! Angrenzend an ein Landschaftsschutzgebiet und fußläufig zum Bahnhof und zur Beelitzer Altstadt entsteht dieses neue familienfreundliche Wohngebiet mit 34 Doppelhaushälften, 17 Baugrundstücken für freistehende Einfamilienhäuser sowie- nach aktueller Planung Reihenhäuser und Mehrfamilienhäuser.

Die Doppelhaushälften bieten eine Vielfalt an Grundrissen, Grundstücksgrößen und architektonischen Konzepten. Insgesamt stehen vier Haustypen zur Auswahl, die zwischen 120 und 163 Quadratmeter Wohnfläche sowie vier bis fünf Zimmer umfassen. Die Häuser werden schlüsselfertig übergeben und zeichnen sich durch eine moderne, aufgelockerte Bebauung mit Blick ins Grüne aus. Die massive Bauweise in Kalksandstein kombiniert mit mineralischer Wärmedämmung sorgt für Energieeffizienz und ein angenehmes Raumklima, das durch Fußbodenheizung zusätzlich unterstützt wird. Bodentiefe Fenster mit dreifacher Isolierverglasung lassen viel Licht ins Haus und schaffen eine offene Atmosphäre. Im Dachgeschoss steht zusätzliche Nutzfläche zwischen 66 und 88 Quadratmetern zur Verfügung, die flexibel genutzt werden kann.

Dieser Haustyp mit einer Wohnfläche von ca. 163 m² bietet ein attraktives Wohnkonzept mit zeitgemäßer Ausstattung für unterschiedlichste Ansprüche. Hier finden sowohl junge Paare als auch Best-Ager und besonders Familien mit Kindern, die ein harmonisches und abwechslungsreiches Leben führen möchten, ihr neues Zuhause. Sie können hier vom Alltag abschalten, das Leben genießen und glücklich sein.

Die Doppelhaushälfte befindet sich auf einem real geteilten Grundstück und ist ein Einzelgebäude mit eigener Trennwand zum Nachbargebäude. Das Haus erfüllt alle Ansprüche an Qualität, Design und Komfort.

Ausstattung
  • Moderne Architektur und aufgelockerte Bebauung mit Blick ins Grüne
  • Massive Bauweise in Kalksandstein, mineralische Wärmedämmung
  • Angenehmes Raumklima durch Fußbodenheizung
  • Größtenteils bodentiefe Fenster mit 3-fach Isolierverglasung
  • Zusätzliche Nutzfläche im Dachgeschoss zwischen 66 m² und 88 m²
  • Schnelles Internet mit Glasfaseranschluss
  • Vorbereitung für Wallbox-Installation am PKW-Stellplatz und vieles mehr
Lage

Beelitz ist toll… und hat Tradition. Die historische Altstadt mit dem stolzen Rathaus, der mächtigen Backstein-Kirche und den kleinen Läden und Restaurants hat viel Charme und Einiges zu bieten. Verschiedene Supermärkte, Läden des täglichen Bedarfs, Postfiliale und Berliner Volksbank, Bäckerei und sogar eine private Metzgerei sind auf kurzem Weg zu erreichen. Aufgrund der hervorragenden Kita- und Schullandschaft ist die Stadt vor allem auch bei jungen Familien beliebt.

Und auch der Spargel gehört zur Beelitzer Tradition – die Stadt trägt offiziell den Namen “Spargelstadt Beelitz”. Im Laufe der Zeit entstanden die weit über die Gebietsgrenzen hinaus bekannten Spargelhöfe, die ihre hochwertigen Produkte in eigenen Hofläden anbieten.

Die gute Verkehrsverbindung mit Regionalbahn und Bussen nach Berlin, Potsdam und in die umgebende Region garantiert eine optimale Erreichbarkeit. Vom Bahnhof Beelitz gelangt man mit der Regionalbahn in 28 Minuten nach Berlin-Wannsee. Von dort sind es noch ca. 15 Minuten bis Berlin-Zoo und dann noch 10 Minuten zum Berliner Hauptbahnhof. Der Regio-Bus fährt von Beelitz über Seddin und Michendorf in 25 Minuten direkt zum Potsdamer Hauptbahnhof. Und wer lieber mit dem Auto unterwegs ist, nutzt die gut ausgebaute Bundesstraße und die Autobahn „Avus“. In 20 Minuten ist man in Potsdam, in gut 35 Minuten in Berlin-Charlottenburg. Zum Berliner Flughafen BER, Richtung Frankfurt/Oder oder Dresden oder in Richtung Hannover oder nach Leipzig – München oder nach Hamburg: die Anbindung mit wenigen Kilometern zu den jeweiligen Autobahnen ist perfekt.

Märkte und Stadteilfeste erstrecken sich über das gesamte Jahr und prägen das nachbarschaftliche Zusammenleben der Beelitzer. Vielfältige Künstler, kleine Galerien und unterschiedlichste Musikveranstaltungen bestimmen die bunte Kulturlandschaft in Beelitz. Die zahlreichen Vereine und kommunalen Kultureinrichtungen bieten jedem die Möglichkeit, sich einzubringen. Mitmachen oder nur Zuschauen – jeder, wie er möchte. Höhepunkt der Aktivitäten ist das jährliche Spargelfest mit seinem spektakulären Umzug als Erlebnis für Groß und Klein.

Für die Landesgartenschau 2022 wurde die Festwiese zwischen der Altstadt und dem Flüsschen Nieplitz liebevoll neu gestaltet. Dort präsentiert sich mit wechselnden Bepflanzungen und vielfältigen Veranstaltungen die Stadt Beelitz einem großen Publikum. Mit einem der größten Spielplätze der Region Brandenburg wird es dort auch den Jüngsten nicht langweilig.

Direkt vor der Haustür können sich die Kinder austoben und Sportliebhaber voll auf ihre Kosten kommen. Der Skatepark am historischen Wasserturm wurde als Outdoor- und Trendsport Arena neu gestaltet. Dieses gesamte Gebiet gegenüber dem Bahnhof Beelitz wird in Kürze noch um ein attraktives Freizeitbad ergänzt werden. Ein nahegelegenes Ausflugsziel ist das Parkgelände Beelitz-Heilstätten mit seinen historischen Schauplätzen, die als lost places weit über die Landesgrenzen hinaus bekannt sind. Dort befindet sich auch der Baumkronenpfad und ein Barfußpark.

Zum Baden, Angeln, Surfen und auch für ausgedehnte Spaziergänge, eine Bootstour oder eine Runde mit dem Fahrrad ist der Seddiner See bestens geeignet. Am südlichen Ufer befindet sich der Findlingsgarten als weitere Attraktion. Der Golfclub Seddiner See komplettiert das umfangreiche Freizeitangebot.

Sonstiges

Alle Angaben in diesem Exposé (Objektbeschreibung, Abmessungen, Preisangaben etc.) beruhen auf Angaben des Verkäufers (oder eines Dritten). Die DKB Grund GmbH überprüfte diese Angaben lediglich auf Plausibilität und übernimmt hierfür keine weitergehende Haftung. Die DKB Grund GmbH haftet bei Vorsatz und grober Fahrlässigkeit. Im Falle einfacher Fahrlässigkeit haftet die DKB Grund GmbH nur bei Verletzung wesentlicher Rechte und Pflichten, die sich nach dem Inhalt und Zweck des Maklervertrages ergeben; in diesem Fall ist die Haftung der DKB Grund GmbH auf den vorhersehbaren, vertragstypischen Schaden begrenzt. Diese Haftungsbeschränkungen gelten nicht für Schäden aus der Verletzung des Lebens, des Körpers oder der Gesundheit oder soweit eine Garantie übernommen wurde. Soweit die Schadensersatzhaftung der DKB Grund GmbH gegenüber ausgeschlossen oder beschränkt ist, gilt dies auch für eine persönliche Schadensersatzhaftung ihrer Arbeitnehmer, Mitarbeiter und Vertreter. Der DKB Grund GmbH ist es gestattet, auch für den Verkäufer provisionspflichtig tätig zu werden.

Ansprechpartner*in:

Ansprechpartner: Wolfgang Sprigode
Wolfgang Sprigode
Immobilienberater

Immobilienanfrage

Pflichtfelder sind mit einem Stern (*) markiert.
Anrede*

Informationen zum Datenschutz
Informationen zur Verarbeitung personenbezogener Daten bei der DKB Grund GmbH gemäß Artikel 13, 14 und 21 Datenschutz-Grundverordnung finden Sie unter unseren Datenschutzhinweisen.